Разработка технических паспортов и инструкций жд путей
Паспорт подъездного пути, паспортизация железнодорожного пути
Нормативные требования по разработке техпаспорта жд путей
ООО «Трудовой десант» предлагает владельцам железнодорожного хозяйства разработать новый или дополнить имеющийся технический паспорт железнодорожного пути. Все необходимые работы по составлению технического паспорта ЖД пути и его согласованию с РЖД будут выполнены специалистами нашего предприятия в кратчайший срок.
В соответствии с ч. 4 ст. 16 Федерального закона № 17-ФЗ и п. 1.9. Приказа МПС России от 18.06.2003 г. № 26, все железнодорожные пути необщего пользования должны иметь технический паспорт. Типовая форма технического паспорта была утверждена указанием МПС РФ № С-5668у от 17.05.1994.
Более полная форма типового паспорта была позднее утверждена распоряжением Минтранса РФ № АН-46-р от 30.05.2001. Несмотря на то, что на данный момент это распоряжение отменено приказом Минтранса РФ N 92 от 02.08.2005, полнотой приведенных в нём данных возможно основываться при разработке техпаспорта жд путей.

Состав технического паспорта железнодорожного пути необщего пользования
Технический паспорт железнодорожного пути состоит из следующих частей:
Часть 1. Общая характеристика организации
1.1. Реквизиты
1.2. Характеристика собственных подъездных путей
1.3. Общая характеристика обслуживаемых организаций
1.4. Характеристика грузовой работы обслуживаемых организаций
1.5. Примыкание путей сторонних организаций
1.6. Схема путевого развития с указанием размещения основных транспортных объектов
Часть 2. Техническая характеристика подъездных путей
2.1. Техническая характеристика подъездного пути
2.1.1. Ведомость путей
2.1.2. Характеристика путей (рельсовые скрепления)
2.1.3. Ведомость стрелочных переводов
2.1.4. Характеристика стрелочных переводов
2.1.5. Ведомость насыпей и выемок
2.1.6. Ведомость водоотводных устройств
2.1.7. Ведомость деформаций земляного полотна
2.1.8. Ведомость искусственных сооружений
2.1.9. Характеристика балластного слоя
2.1.10. Характеристика способов закрепления вагонов от угона
2.1.11. Эпюра, количество и материал шпал в пути
2.1.12. Тип рельсов в пути
2.1.13. Наличие сварных стыков
2.1.14. Ведомость железнодорожных переездов, входящих в ведение организации
2.1.15. Ведомость негабаритных мест
Часть 3. Технические средства организации
3.1. Локомотивное хозяйство
3.1.1. Ведомость локомотивов, принадлежащих ветвевладельцу
3.1.2. Характеристика локомотивных депо
3.1.3. Выполняемые виды ремонтов в локомотивных депо
3.1.4. Ведомость экипировочных пунктов
3.1.5. Ведомость тяговых агрегатов
3.2. Вагонное хозяйство
3.2.1. Парк собственных вагонов
3.2.2. Парк арендуемых вагонов
3.2.3. Характеристика собственных вагонов, выходящих на пути МПС
3.2.4. Характеристика арендованных вагонов, выходящих на пути МПС
3.2.6. Характеристика вагонных депо
3.2.7. Ведомость пунктов технического обслуживания вагонов
3.3. Погрузочно-выгрузочное хозяйство
3.3.1. Ведомость грузовых фронтов
3.3.2. Ведомость складов
3.3.3. Ведомость весов
3.3.3. Ведомость погрузочно-разгрузочной техники
3.4. Путевое хозяйство
3.4.1. Ведомость путевых машин и механизмов
Часть 4. Показатели деятельности организации
4.1 Перевозка грузов по подъездным путям
4.2 Выгрузка вагонов
4.3 Погрузка вагонов
4.4 Подача вагонов к местам погрузки (выгрузки)
4.5 Подготовка общесетевых вагонов к погрузке и очистка после выгрузки
4.6 Ремонт пути
4.7 Использование локомотивного парка
4.8 Использование вагонного парка по времени
4.9 Основные фонды организации
Геодезические работы при разработке технического паспорта пути
Основным и самым трудоемким этапом разработки технического паспорта являются полевые работы, включающие в себя съемку продольного профиля и масштабного плана железнодорожных путей, детальную съемку кривых.
Для выполнения этих работ наша бригада выезжает на территорию предприятия заказчика и производит работы в согласованное с заказчиком время, так как для выполнения данных работ необходимо предоставить свободность путей.
Работы производятся с применением современного оборудования: электронного лазерного нивелира, электронного теодолита либо электронного тахеометра, в соответствии с СП.126.13330.2012 «Геодезические работы в строительстве» и СП 11-104-97 «Инженерно-геодезические изыскания для строительства».
Инженерно-технические изыскания
Инженерно-технические изыскания выступают неотъемлемой частью изысканий при разработке технического паспорта железнодорожного пути. Они включают комплексный осмотр и полную опись верхнего и нижнего строения пути, с целью определения всех характеристик и показателей пути, земляного полотна, искусственных сооружений.
Камеральные работы при разработке технического паспорта пути
В состав камеральных работ входит обработка результатов геодезических и инженерно-технических изысканий. Выполняется отрисовка масштабного плана и продольных профилей путей. Составляются сводные таблицы, заполняются подпункты всех четырёх частей техпаспорта.
По окончании выполнения камеральных работ, издаётся 3 экземпляра технического паспорта железнодорожного пути необщего пользования, по одному экземпляру для каждой стороны:
- компании-разработчика техпаспорта,
- собственника подъездного железнодорожного пути необщего пользования (заказчика),
- представителя владельца инфраструктуры (начальника жд станции примыкания).
Заключительным шагом является согласование технического паспорта у представителя владельца инфраструктуры, - получение визы начальника жд станции примыкания и передача соответствующих экземпляров готового техпаспорта причастным сторонам.
Технический паспорт железнодорожного пути должен содержать объективную информацию на каждый момент времени. Все выполненные изменения в плане, профиле и конструкции пути, необходимо своевременно вносить в технический паспорт, если же изменений конструкции пути не проводилось, то проверке подлежат только план и профиль пути с периодичностью один раз в десять лет в соответствии с п. 7 Приложения № 1 к Правилам технической эксплуатации железных дорог Российской Федерации (ПТЭ), утвержденным приказом Минтранса № 286 от 21.12.2010.

Составление инструкции о порядке обслуживания и организации движения на железнодорожном пути необщего пользования
Нормативные требования по разработке инструкции о порядке обслуживания и организации движения на железнодорожном пути необщего пользования
После окончания строительства железнодорожного пути и его сдачи в эксплуатацию, необходимо составление инструкции о порядке обслуживания и организации движения на железнодорожном пути необщего пользования в соответствии с Федеральным законом "О железнодорожном транспорте в Российской Федерации" ч. 4 ст. 16 № 17-ФЗ, Правилами эксплуатации и обслуживания железнодорожных путей необщего пользования п. 1.7. Приказа МПС РФ № 26 от 18.06.2003, Правилами технической эксплуатации железных дорог Российской Федерации (ПТЭ) п. 12 Приложения № 6 Приказа Минтранса РФ № 286 от 21.12.2010.
Порядок разработки инструкции, ее состав, этапы согласований определены распоряжением ОАО "РЖД" № 2859р от 23.12.2013 "О разработке, согласовании и утверждении в ОАО "РЖД" Инструкции о порядке обслуживания и организации движения на железнодорожном пути необщего пользования, а также железнодорожном пути, находящемся в ведении функционального филиала или структурного подразделения ОАО "РЖД".
Мы, компания ООО «Трудовой десант», выполняем работы по составлению инструкций по организации маневровой работы на железнодорожных путях с 2008 года. С нами вы можете быть уверены в высоком качестве работ и оперативном их исполнении.
Состав инструкции о порядке обслуживания и организации движения на железнодорожном пути необщего пользования
Для каждого пути требуется индивидуальная инструкция, учитывающая все технические особенности пути, такие как план пути, продольный профиль, наличие электрификации, сигнализации, централизации, вагонного и локомотивного хозяйства, устройств для погрузки-выгрузки грузов. Инструкция учитывает род грузов, перевозимых по пути необщего пользования, ритмичность и объем грузовой работы, допускаемые скорости движения.
Инструкция включает в себя следующие основные пункты:
- Общая характеристика железнодорожного пути;
- Порядок подачи, уборки вагонов со станции на железнодорожный путь и обратно;
- Маневровая работа на железнодорожном пути;
- Закрепление вагонов на железнодорожном пути;
- Техника безопасности.
Дополнительно к инструкции прикладываются:
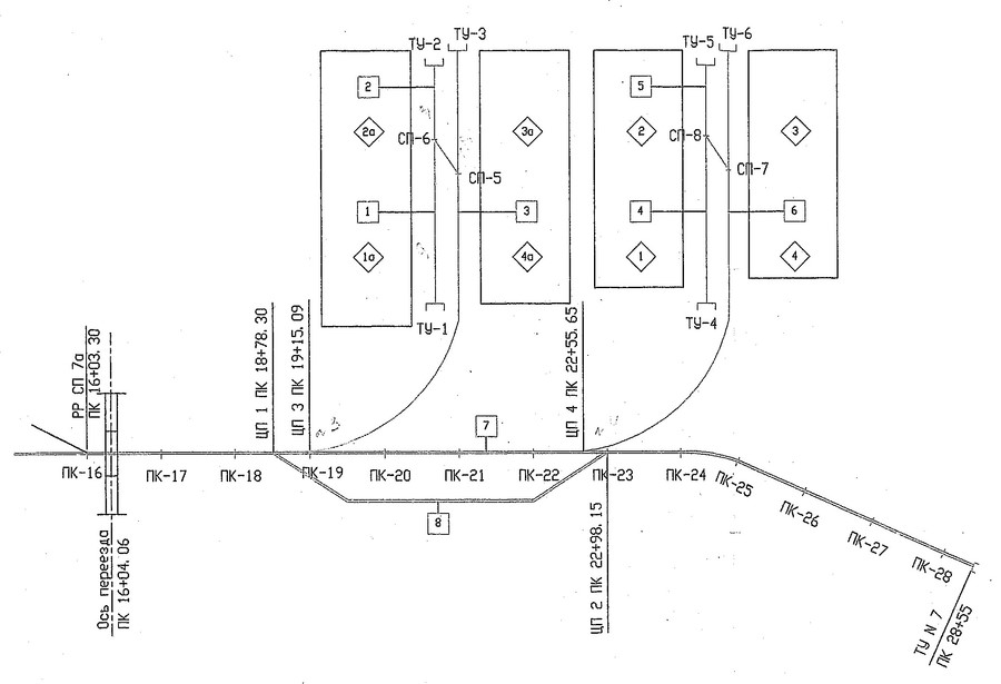
- схематический план железнодорожного пути;
- ведомость железнодорожного пути, примыкающего к жд станции;
- ведомость стрелочных переводов железнодорожного пути, примыкающего к жд станции;
- порядок и нормы закрепления вагонов на железнодорожном пути, примыкающем к жд.

Разработка и согласование инструкции по маневровой работе на жд пути необщего пользования
Инструкция должна быть разработана, проверена и утверждена владельцем железнодорожного подъездного пути необщего пользования.
После этого начинается непростой процесс согласований.
Инструкция проверяется и согласовывается:
- начальником станции примыкания железнодорожного пути необщего пользования,
- ревизором (движения) участка,
- начальником дистанции пути,
- начальником эксплуатационного локомотивного депо, при обслуживании железнодорожного пути необщего пользования локомотивом ОАО «РЖД».
Затем инструкция передается в отдел по работе со станциями центра организации работы железнодорожных станций, который обеспечивает согласование Инструкции:
- начальником отдела по работе со станциями центра организации работы железнодорожных станций;
- начальником отдела коммерческой работы в сфере грузовых перевозок центра организации работы железнодорожных станций (при его отсутствии - заместителем начальника центра организации работы железнодорожных станций по коммерческой работе в сфере грузовых перевозок);
- ревизором по безопасности движения по региону (по хозяйству перевозок);
- начальником центра организации работы железнодорожных станций.
Окончательно согласовывает инструкцию заместитель начальника железной дороги (по территориальному управлению). Заместитель начальника железной дороги (по территориальному управлению) в зависимости от местных условий вправе поручить окончательное согласование инструкции заместителю главного инженера железной дороги.
Мы берем на себя не только разработку инструкции, но и согласование со всеми причастными службами. По окончании работы мы выдаем 2 экземпляра конечного документа, из которых:
- Экземпляр (оригинал) хранится у заказчика - владельца или пользователя железнодорожного пути необщего пользования.
- Экземпляр (оригинал) для начальника станции примыкания.
- Экземпляр (копия) для отдела по работе со станциями центра организации работы железнодорожных станций.
- Экземпляр (копия) для отдела коммерческой работы в сфере грузовых перевозок центра организации работы железнодорожных станций.
До окончательного утверждения инструкции по маневровой работе подача составов на железнодорожный подъездной путь запрещена.
При изменении технического оснащения железнодорожного пути необщего пользования или технологии его работы инструкция пересматривается в установленном порядке. В случае изменения владельца железнодорожного пути необщего пользования утверждается новая инструкция.

